金诺格超大门系统全部采用绿色环保可再次利用的钢与不锈钢型材,钢型材的高强度,门扇高度可实现4-6米,为建筑师实现高品质工程提供更好选择。
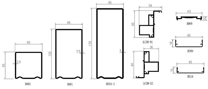
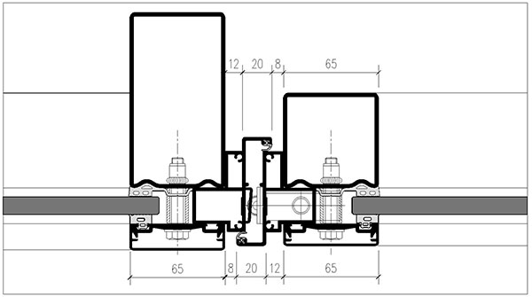
型材截面

美观兼顾环保
随着人类社会的进步,人们越来越追求美观,这引起了人们对建筑的高通透性要求。金诺格为了满足人们的要求自主开发研制了超大门系统。超大门系统能为人们提供更宽阔的视觉效果,给人们带来舒适感。
金诺格超大门系统全部采用绿色环保可再次利用的钢与不锈钢型材,钢型材的高强度,门扇高度可实现4-6米,为建筑师实现高品质工程提供更好选择。

系统优势
•镀锌钢型材系统,多种颜色氟碳喷涂、粉末喷涂。不锈钢型材表面可拉丝、镜面处理。
•超大门气势恢宏,具有良好密封性能,防水性能和美观、大气、通透的视觉享受,特别适合于大型公共建筑的户外大门系统。
•源自钢的高强度特性,使型材更加纤细、可实现超大门、大尺寸玻璃板块,多样化。
•门五金采用高端进口气密锁、偏心铰链、重型地弹簧,具有良好的稳定性、舒适性、耐久性。

